00件
最近見た物件
00件
検討リスト
灘区の不動産|HOME REXUS株式会社(ホームリクサス) > (マンション(売買))地域から探す > 明石市 > プレステージ西明石パークサイド > 102
明石市エリアで住み心地も快適な「プレステージ西明石パークサイド」はいかがでしょうか。新生活を始めるなら、室内全面リフォーム済の2180万円の物件。駅から徒サンディ西明石店まで徒歩3分です。駅から徒歩9分圏内の物件です。床から天井までの高さが2.5メートル以上です。安心のオートロックが嬉しい、防犯を考慮した物件です。ご家族で有意義に暮らせるお住まいを、当社がご提案します。











(※元利均等方式 金利5.00%まで ※返済年数5~50年まで入力できます)
(※ボーナスは年2回で計算しています。1000万円まで入力できます)
(※物件購入時、その他諸費用が発生する場合がございます)
| 所在地 | 兵庫県明石市小久保5丁目9-5 | ||
|---|---|---|---|
| 交通 | |||
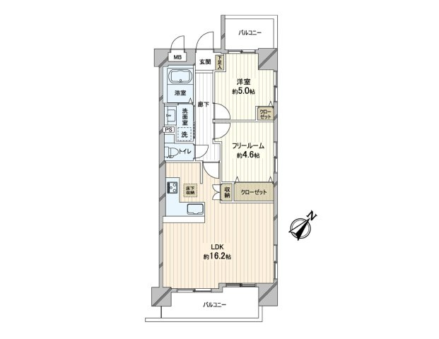
| 間取り/詳細 |
2LDK LDK 16.2帖 1室/洋室 5.0帖 1室/洋室 4.6帖 1室 |
||
| 専有面積/バルコニー面積 | 57.42㎡/10.51㎡ | ルーフバルコニー面積/テラス面積/専用庭面積 | -/-/- |
| 価格 | 2,180万円 | ||
| 管理費 | 10,620円 | ||
| 修繕積立金 | 20,100円 | 修繕積立基金 | - |
| 権利金 | - | 駐車場/月額料金 | 無/- 要確認 |
| 土地の敷金/保証金 | -/- | 借地料/借地期間 | -/- |
| 土地権利 | 所有権 | 国土法届出要否 | 不要 |
| 用途地域 | 第一種住居 | 地勢 | 平坦 |
| 種別/構造 | 中古マンション/鉄筋コンクリート | 向き | 南東 |
| 築年月(築年数) | 2000年 6月 (築25年) | ||
| 所在階/階建 | 1階/5階建 | 棟総戸数/販売戸数 | 18戸/1戸 |
| 管理組合有無 | 有 | 管理形態 | 管理会社に全部委託 |
| 管理員の勤務形態 | 巡回 | 管理会社 | 日本住宅管理 |
| 取引態様 | 売主 | 現況 | 空家 |
| 引渡し | 相談 | 建築確認番号 | - |
| 物件番号 | 102319678 | 取引条件の有効期限 | 2026年04月23日 |
| リフォーム |
2026年3月 キッチン 浴室 壁 床 全室 |
||
| 設備条件 |
|
||
| 備考 | 家から414mの場所に明石鳥羽郵便局があります。来訪者をモニターで確認できるTVインターホン付きです。不審者対策に欠かせないオートロックも備えています。バルコニーの広さは10.51平米です。浴室乾燥機付き物件ならば、雨で外に干せない日でも部屋干し特有の臭いを防げます。きれいで便利な中古マンションで優雅な生活をおくりましょう。不動産購入は人生で一度あるかないかの大きな買い物です。失敗したくないのであれば、経験豊富なプロにお任せください。メールもしくはお電話からご連絡をお待ちしております。 | ||
| 条件(その他) | ポーチ使用料月:110円 | ||
| 取扱会社 |
|
||
| QRコード |
このQRコードを読み取ることで、スマホでも物件情報を確認できます。 |
||
※地図上に表示される物件の位置は付近住所に所在することを表すものであり、実際の物件所在地とは異なる場合がございます。
プレステージ西明石パークサイドに関するこだわり条件から探す
明石市の町名から探す